반응형
강동밀레니얼 중흥 S 클래스 상세 도면 공유 드립니다. 24년 8월 15일 부터 하자 점검 기간입니다. 하자 점검 실측 값 정리할 때 사용하시면 유용 할 것으로 생각 됩니다.
강동밀레니얼 중흥 S 클래스 상세 도면
기존 파일은 검정색이라서, 아래 처럼 하얀 색으로 변경해서 올려 드립니다.
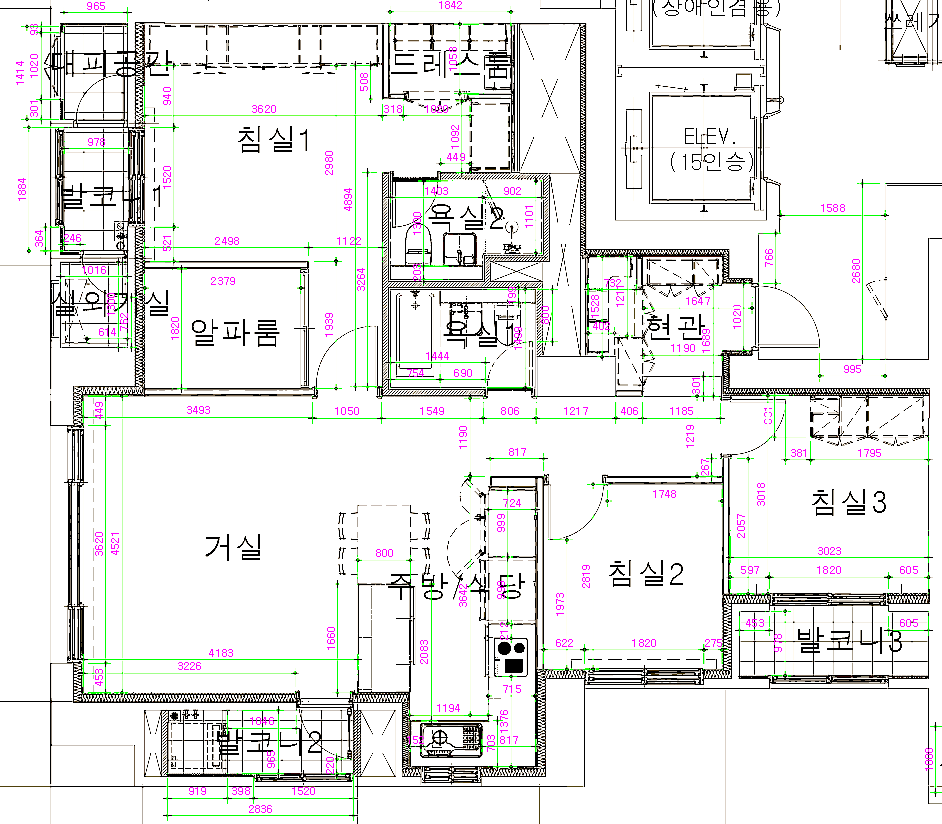
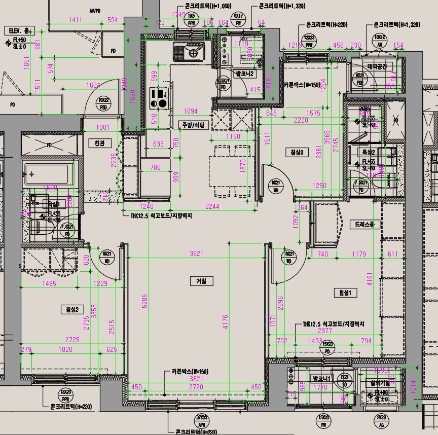
먼저 84B 타입 입니다. 알파룸이 있어서 추가적인 서비스 면적을 제공 받는 특징이 있습니다. 아쉬운 부분은 부엌이 일반 24평 만한 사이즈 보다 작게 느껴지는 부분이 있습니다. 조리하기에는 공간이 부족해 보입니다.

반응형

강동밀레니얼 중흥 S 클래스 59 타입 반전 도면입니다.

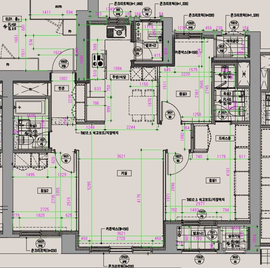
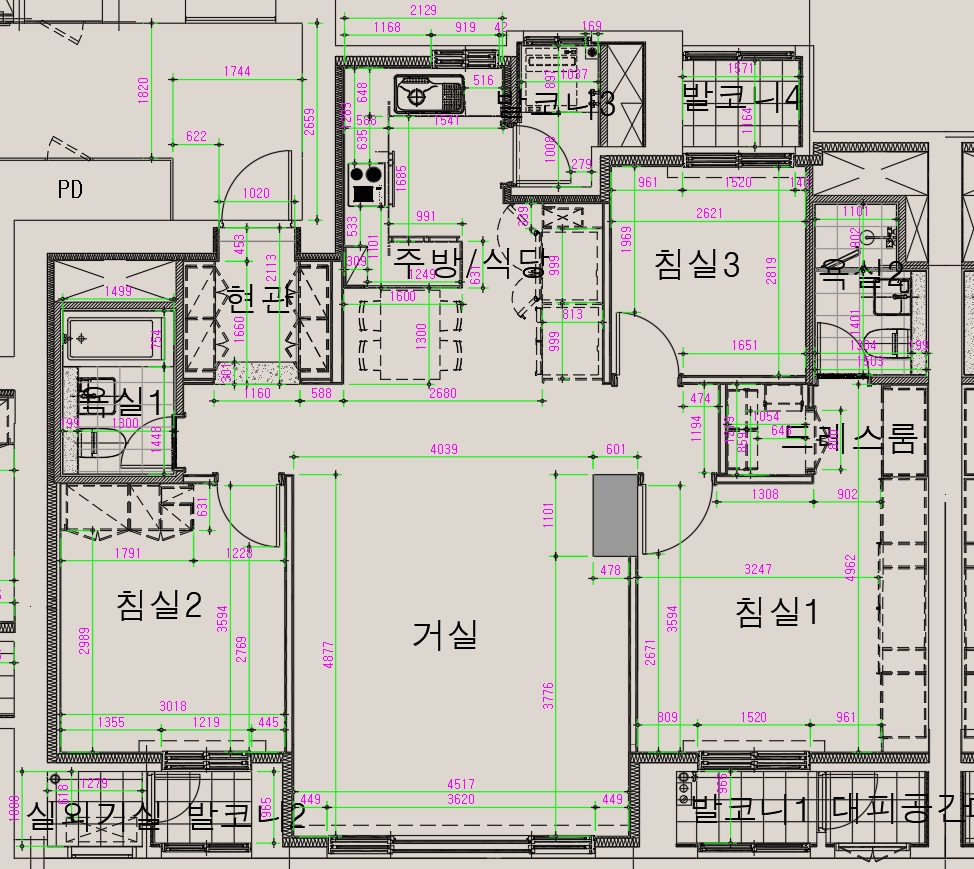
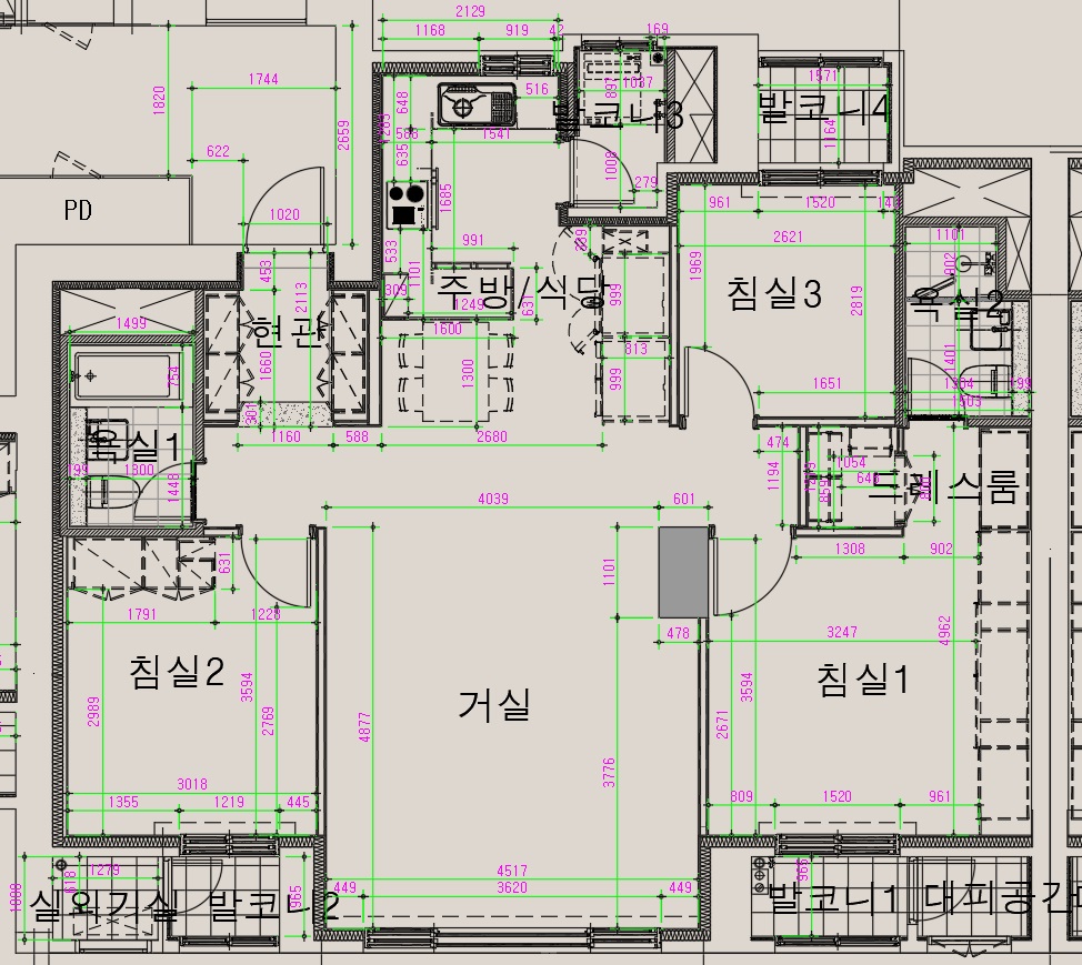
강동밀레니얼 중흥 S 클래스 84A 타입 반전 도면입니다.
검정도면 말고 밝은 도면으로 인쇄를 위한 용도는 아래 링크 참조 부탁 드리겠습니다.
강동밀레니얼 중흥 S클래스 59, 84A 상세 도면
강동밀레니얼 중흥 S클래스 59, 84A 상세 도면입니다. 반전 도면으로 기존에 회색이 빠진 밝은 흰색이라 보시기 편합니다.
rebuild.rapportmind.com
'부동산' 카테고리의 다른 글
| 하자점검 셀프 점검 항목 (0) | 2024.08.18 |
|---|---|
| 하자점검 준비물 셀프 (0) | 2024.08.15 |
| 중흥 S 클래스 사전 점검 A플래너 이용하기 (0) | 2024.08.09 |
| 그란츠리버파크 청약 결과 경쟁율 (0) | 2024.08.09 |
| 조합원 취득세 안내 (0) | 2024.08.08 |